LINEE SPECIALI DEDICATE - CMV GLASS

CMV Costruzione Maccine Vetro
En banner
CiaoLogout
Vai ai contenuti

LINEE SPECIALI DEDICATE

PRODOTTI > MACCHINE E APPLICAZIONI SPECIALI

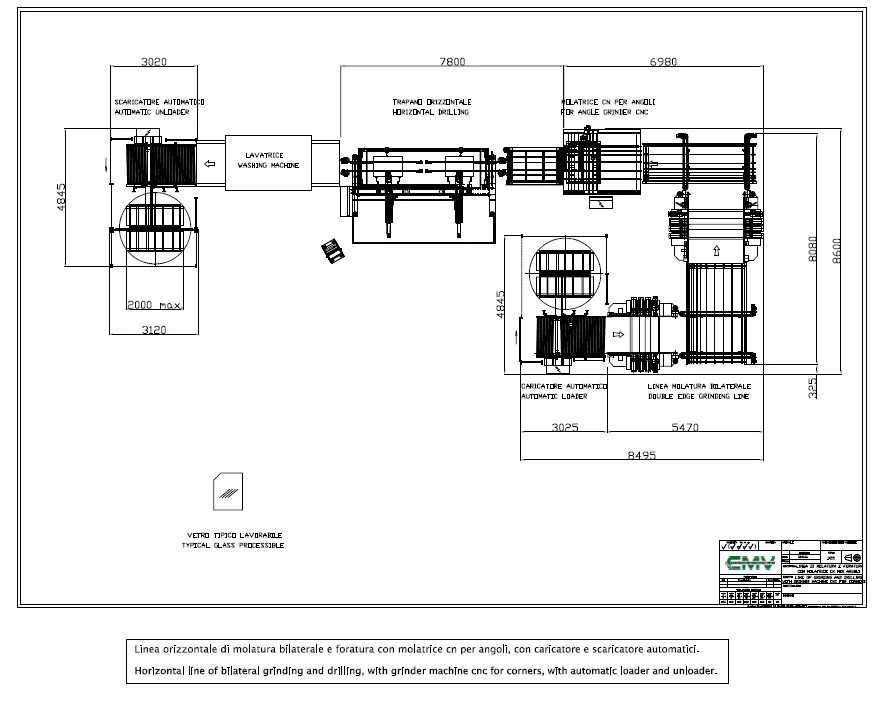
CMV realizza linee di lavorazione complete per la produzione di vetri per il settore dell’elettrodomestico e dell’auto;
siamo in grado di adattare i nostri progetti alle specifiche esigenze dei clienti.

Torna ai contenuti